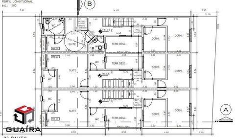
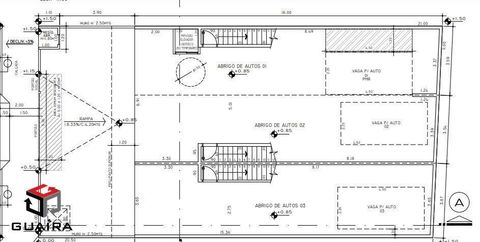
24 imóveis

em

Vila Francisco Matarazzo

ordenados por